meet

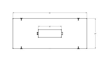
conference table. bamboo top with custom embossed logo in center concrete tile, welded steel base.

96” long x 39” deep x 30” tall. can ship flat